
- 価格
- 5,580万円
- 住所
- 京都市伏見区柿ノ木浜町431番地、同所432番地2合併1
- アクセス
- 京阪本線「中書島」駅 徒歩8分
- 建物面積
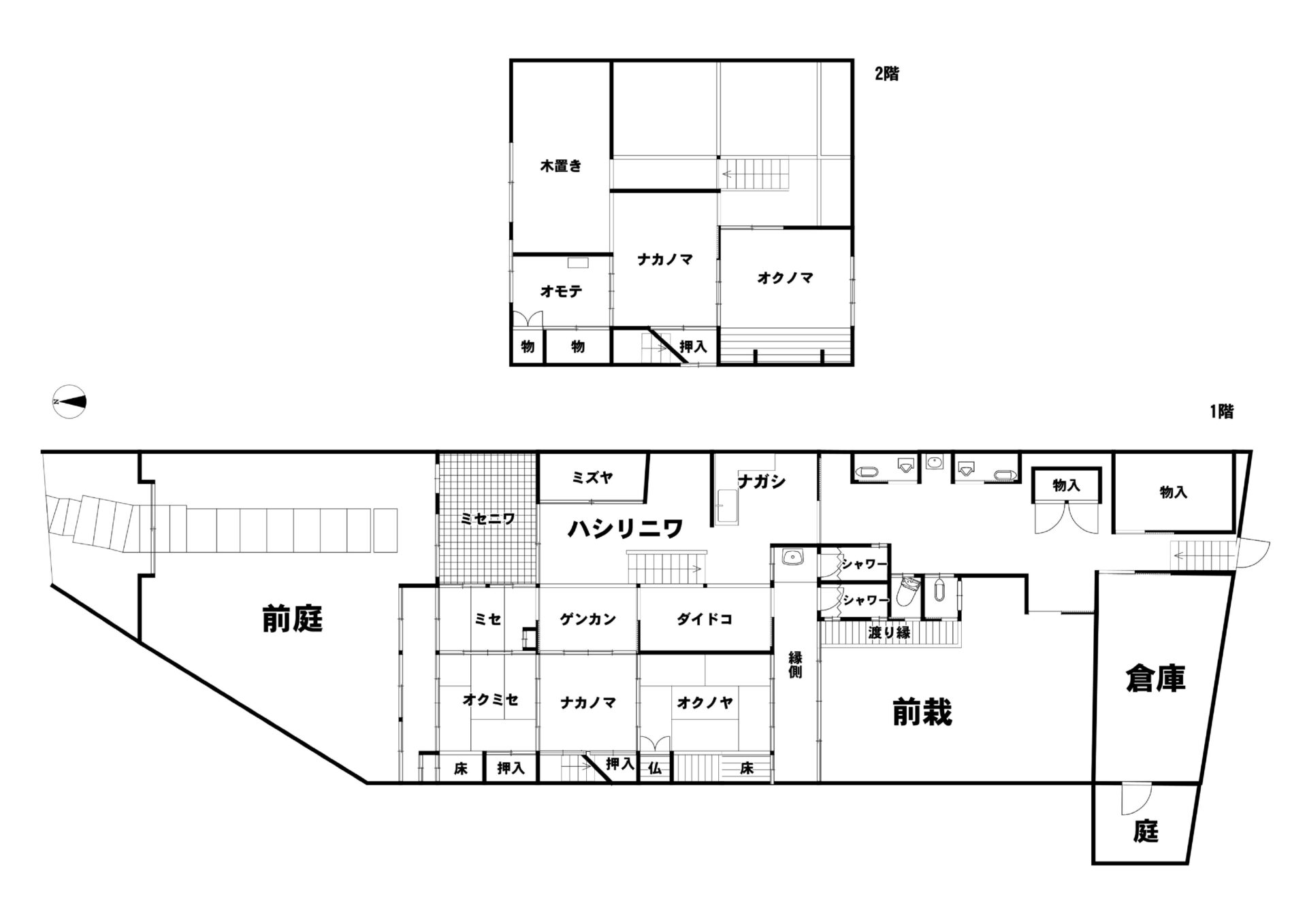
- 1階:106.44㎡ 2階:32.72㎡ その他:9.58㎡ 延べ:148.74㎡
- 公的指定
- なし
- 取引態様
- 仲介
- 取引業者名
- 株式会社都ハウジング
- 物件情報の詳細
- PDFを開く
- 最終更新日
- 2025.10.4
- 次回更新予定日
- 2025.10.18
近隣に江戸時代、淀川を酒や米、旅客を運んだ三十石船を復元した十石舟の乗り場があります。
まるで江戸時代にタイムスリップした気分で酒蔵のまち・伏見の景色をご覧頂ける本物件は、明治45年に建築された京町家です。
間取りは10Kあり、大型の京町家になります。
2008年に事業用として賃貸をし、元々の形を出来るだけ残しながら、大規模リノベーション(屋根は除く)をさせて頂きました。
リノベーション後17年を経過しておりますが、室内の保守状況は良好です。
浴室はありませんが、シャワールームがございます。
居住用でも事業用でも使用可能です。ぜひ、ご覧ください。
間取り
.jpg)