No.154あけびわ路地の町家

- 賃料
- 113,000円
- 住所
- 京都市下京区御幸町通松原下須浜町670-1
- アクセス
- 京阪電鉄本線「清水五条」駅 徒歩7分
阪急電鉄京都線「京都河原町」駅 徒歩11分
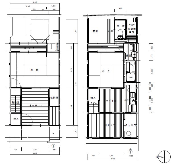
京都市営地下鉄烏丸線「五条」駅 徒歩13分 - 建物面積
- 1階:28.69㎡ 2階:25.61㎡ 延べ:54.30㎡
- 公的指定
- なし
- 取引態様
- 仲介
- 取引業者名
- 株式会社丸吉住宅
- 物件情報の詳細
- 情報が掲載されているサイトへ移動する
- 最終更新日
- 2025.9.30
- 次回更新予定日
- 2025.10.14
PROPERTIES