PROPERTIES

No.159二条城近くの京町家

二条城近くの京町家
価格
1億1,000万円
住所
京都市中京区二条通堀川東入矢幡町306番3
アクセス
地下鉄東西線「二条城前」駅 2番出入口 徒歩約3分
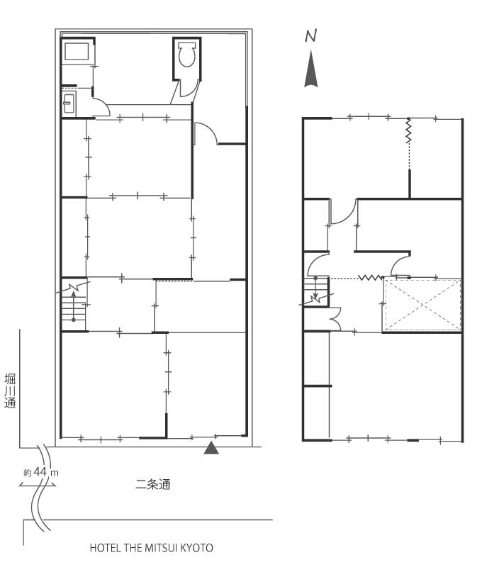
建物面積
1階:約66.69㎡ 2階:約51.65㎡ 延べ:約118.34㎡
公的指定
なし
取引態様
仲介
取引業者名
株式会社八清
物件情報の詳細
情報が掲載されているサイトへ移動する
最終更新日
2025.12.4
次回更新予定日
2025.12.18

通りを渡れば二条城という立地。
しかしながら賑やかな観光地ではなく、小さなお店やスーパーも近くにあり人々の暮らしがそばに感じられる雰囲気が魅力です。
ビルに挟まれながらも堂々と存在感を放つ京町家。
一列四室、火袋、庭など町家らしい間取と面影が残り、京都らしさ感じる佇まいが見事です。

※建物は老朽化が進んでいるため、使用に際しては修繕が必要です
※売主の契約不適合責任は免責とします
※町家条例に基づく指定地区内の町家物件につき、建物の解体は着工する1年前に解体届の提出が必要となります
※本物件は現状有姿での取引とします
※宅内の残置物はそのままでの取引となります

間取り

二条城近くの京町家

地図

物件写真

PageTop