PROPERTIES

No.156東西町の貸京町家

東西町の貸京町家
賃料
事業用210,000円(税込)/ 居住用180,000円
住所
京都市上京区寺之内通堀川西入東西町377番地
アクセス
市バス「堀川寺ノ内」停 徒歩約2分
地下鉄烏丸線「今出川」駅 2番出口 徒歩約15分
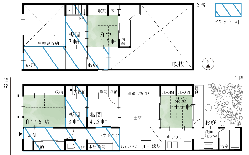
建物面積
1階:96.92㎡ 2階:35.50㎡ 延べ:132.42㎡
公的指定
個別指定京町家・歴史的風致形成建造物
取引態様
仲介
取引業者名
株式会社八清
物件情報の詳細
情報が掲載されているサイトへ移動する
最終更新日
2025.11.10
次回更新予定日
2025.11.24

築120年以上という織屋建の京町家。
天井が高く、開放感のある空間が広がる織屋建の美しさや質感、味わいが残されています。

事務所兼住居としてはもちろん、居住用としても利用可能です。
幅広い用途に対応できます。

※事業用の場合、飲食可(軽飲食程度)、宿泊施設不可。
※その他注意事項:おくどさんは排煙機能が未整備のため使用不可。井戸もありますが水質調査をしていないため使用不可。

間取り

東西町の貸京町家

地図

物件写真

PageTop